для чего нужен проект?
Проектирование позволяет заранее рассчитать материал и оборудование. Это дает возможность спрогнозировать бюджет и контролировать расходы при монтаже.
Совместная работа с подрядчиками
Проект позволяет грамотно вписать инженерные системы в дизайн-проект помещения. А также помогает ускорить согласование с инженерами смежных разделов
гарантия правильной работы системы
Проработка проекта помогает избежать ошибок при подборе оборудования, дальнейшем монтаже и эксплуатации системы. Минимизирует риск переделок
подбор оптимального оборудования
Проектировщик учитывает размеры комнат, высоту потолка, расположение окон, проводит расчеты, включая воздухообмен. Это позволяет подобрать оптимальное оборудование под особенности помещения и бюджет.
Необходима индивидуальная консультация?
Оставьте нам заявку, и мы перезвоним вам в ближайшее время и с радостью ответим на все ваши вопросы!
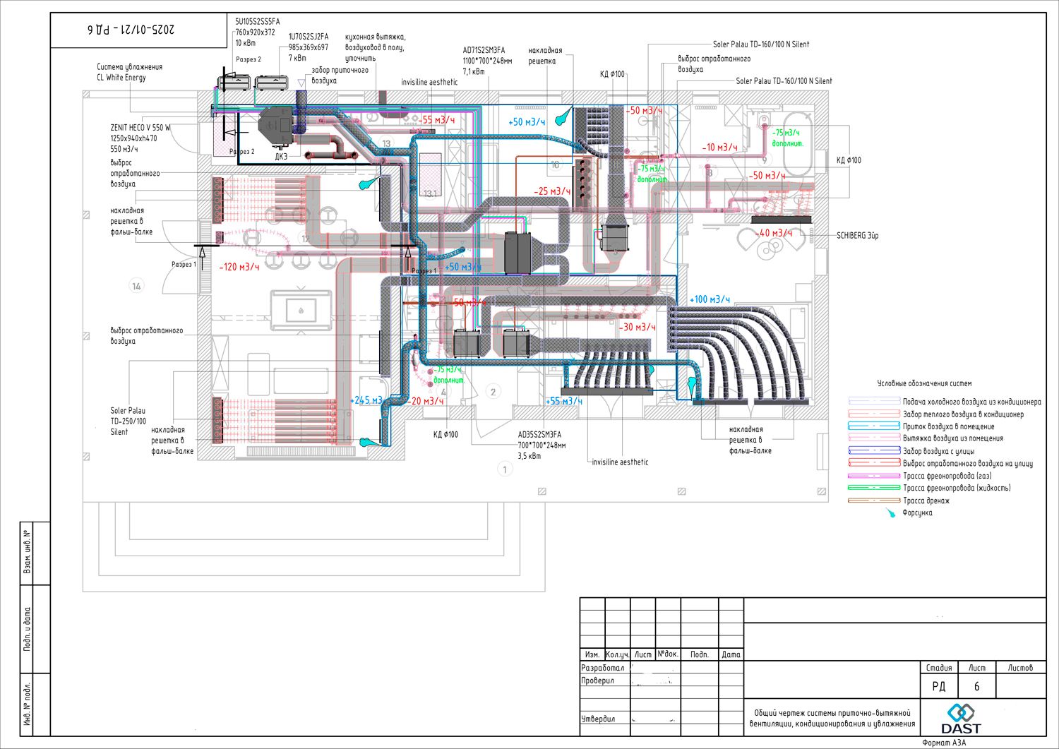
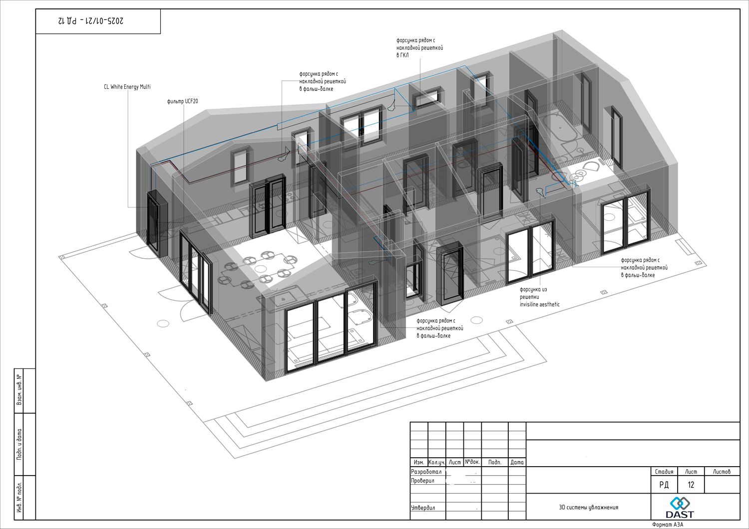
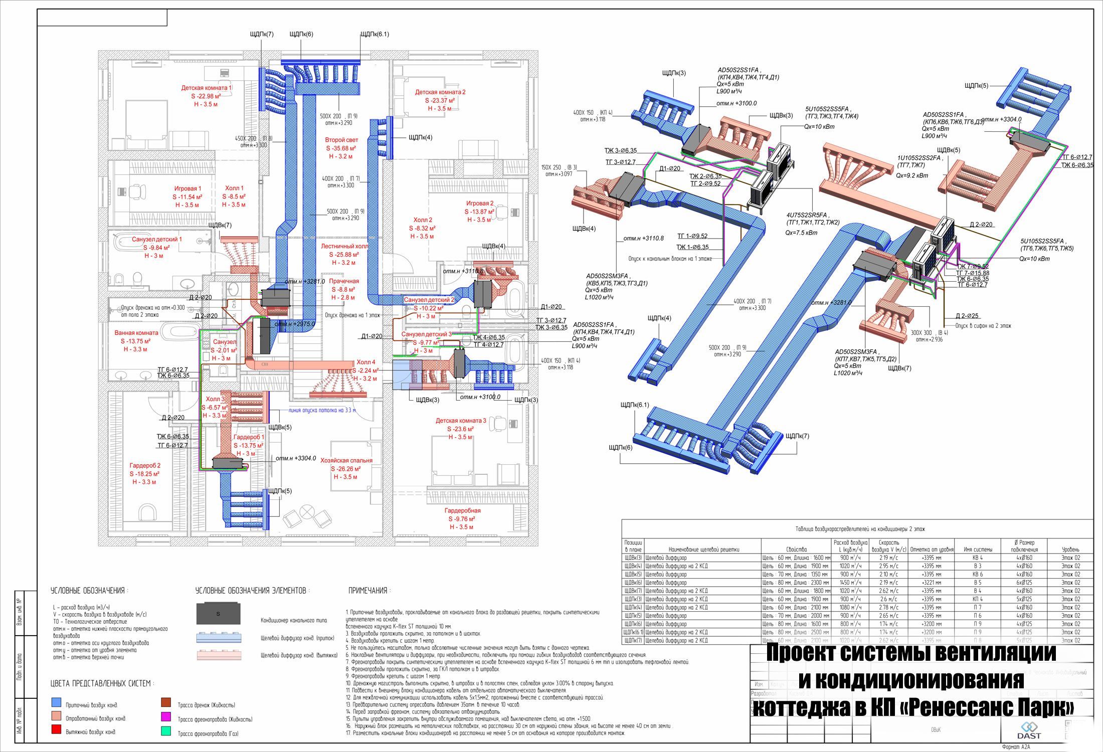
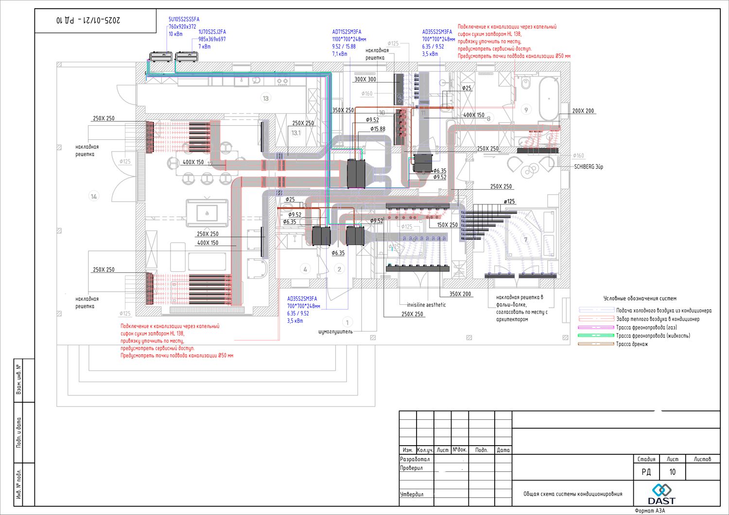
примеры проектов
выполненные работы
наш проект содержит:
1. Общие данные и пояснения.
2. Таблица воздухообмена ( для вентиляции)
3. Таблица технических характеристик системы.
4. Маркировка системы.
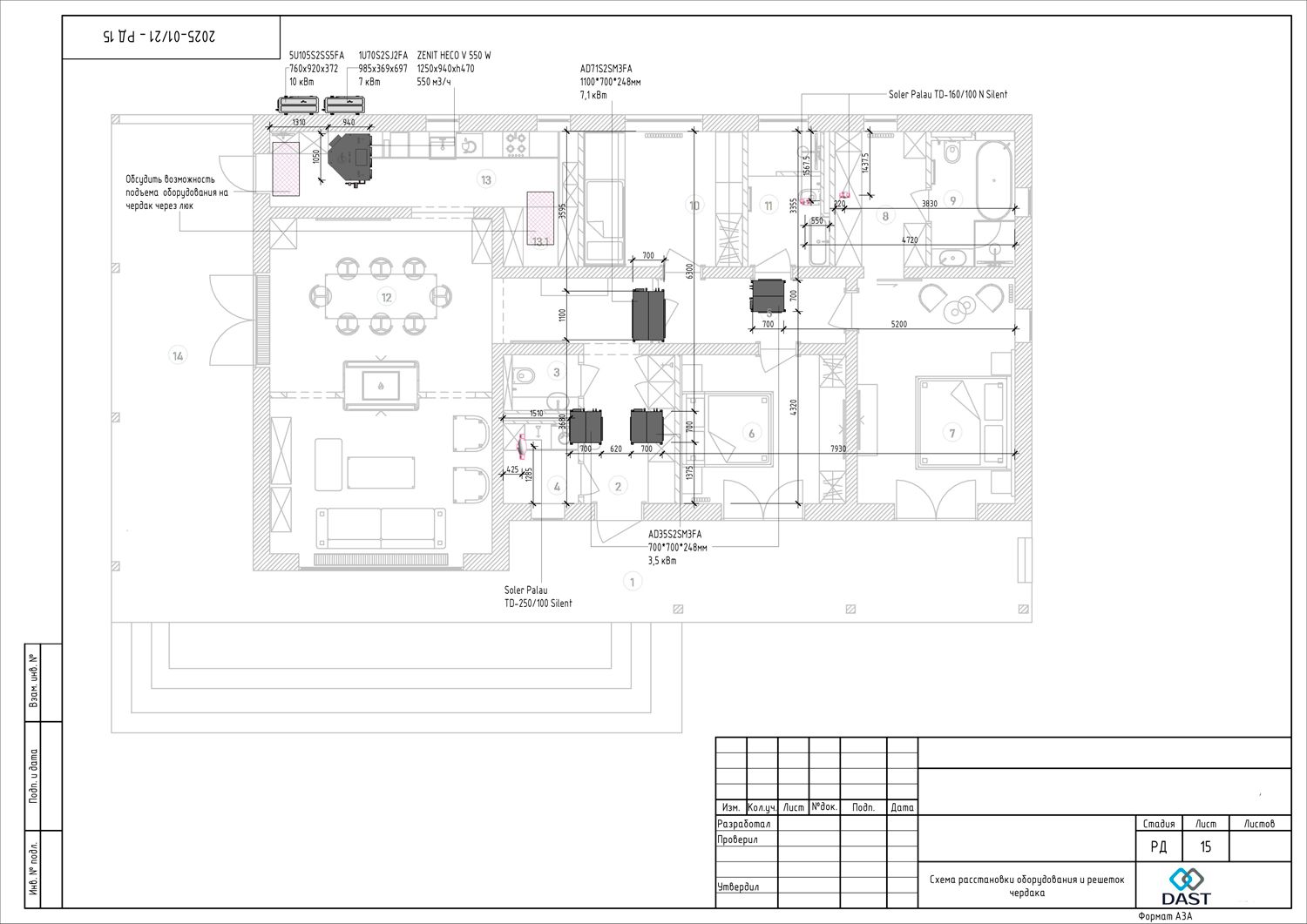
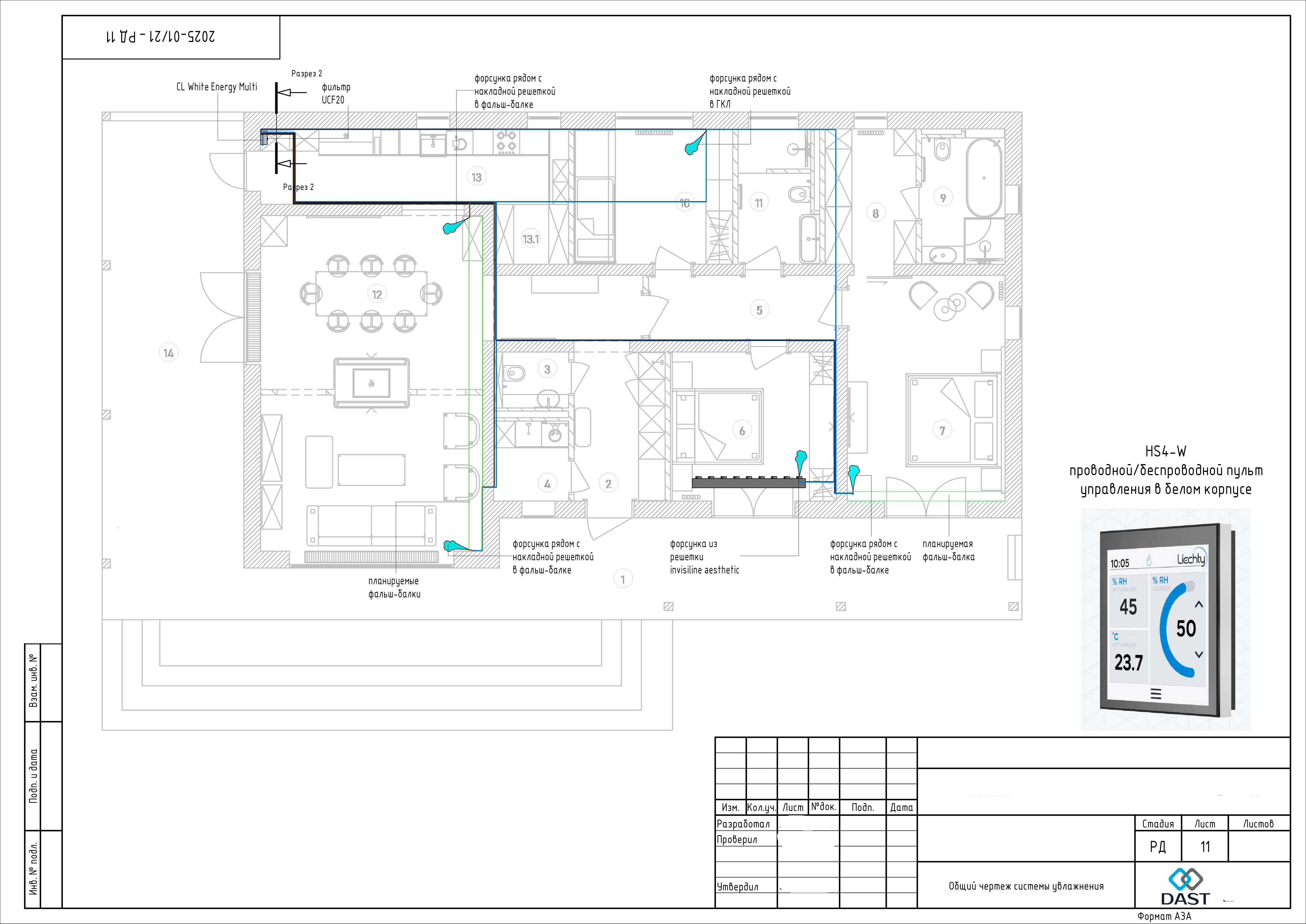
5. Схема расстановки.
6. Схема технических технологических характеристик.
7. Поэтажные схемы.
8. Изометрические схемы.
В зависимости от технического задания:
- схема дренажных коммуникаций
- схема вывода меди
- детализация узлов
- схема электрооборудования
2. Таблица воздухообмена ( для вентиляции)
3. Таблица технических характеристик системы.
4. Маркировка системы.
5. Схема расстановки.
6. Схема технических технологических характеристик.
7. Поэтажные схемы.
8. Изометрические схемы.
9. Требуемое за потолочное пространство.
- схема дренажных коммуникаций
- схема вывода меди
- детализация узлов
- схема электрооборудования
содержание нашего проекта
1. Общие данные и пояснения.
2. Таблица воздухообмена ( для вентиляции)
3. Таблица технических характеристик системы.
4. Маркировка системы.
5. Схема расстановки.
6. Схема технических технологических характеристик.
7. Поэтажные схемы.
8. Изометрические схемы.
9. Требуемое за потолочное пространство.
В зависимости от технического задания:
- схема дренажных коммуникаций
- схема вывода меди
- детализация узлов
- схема электрооборудования
2. Таблица воздухообмена ( для вентиляции)
3. Таблица технических характеристик системы.
4. Маркировка системы.
5. Схема расстановки.
6. Схема технических технологических характеристик.
7. Поэтажные схемы.
8. Изометрические схемы.
9. Требуемое за потолочное пространство.
В зависимости от технического задания:
- схема дренажных коммуникаций
- схема вывода меди
- детализация узлов
- схема электрооборудования
О компании
Уважаемые коллеги и партнеры,
Позвольте представить вам компанию «ДАСТ» — динамично развивающуюся организацию, образованную в 2018 году и объединяющую талантливых инженеров, конструкторов и техников, создающих безупречные проекты для комфортного проживания и эффективной эксплуатации инженерных систем.
Основное направление нашей деятельности сосредоточено на разработке, монтаже и техническом обслуживании современных инженерных систем. Основные наши направления - система вентиляции и кондиционирования и увлажнения, бельепровод и встроенное пылеудаление.
Благодаря своему опыту и профессионализму наши сотрудники создают комфортные и экологически чистые пространства для владельцев частного жилья, особняков и элитных апартаментов. Каждый проект разрабатывается индивидуально, исходя из особенностей здания и пожеланий клиента, обеспечивая максимальную функциональность и эстетичность применяемых решений.
«ДАСТ» известна высоким уровнем исполнительской дисциплины, четким соблюдением сроков и ответственным отношением к заказчикам. Качество и надежность выполненных работ обеспечиваются строгим контролем на всех этапах проекта, применением инновационных материалов и проверенных технологических решений.
Мы стремимся не просто соответствовать ожиданиям клиентов, но превзойти их, создавая проекты, которыми приятно пользоваться долгие годы. Именно поэтому мы гордимся доверием своих постоянных партнеров и гарантируем постоянный профессиональный рост и совершенствование наших сотрудников.
Александр Мамыкин.
Генеральный директор ООО «ДАСТ».
Позвольте представить вам компанию «ДАСТ» — динамично развивающуюся организацию, образованную в 2018 году и объединяющую талантливых инженеров, конструкторов и техников, создающих безупречные проекты для комфортного проживания и эффективной эксплуатации инженерных систем.
Основное направление нашей деятельности сосредоточено на разработке, монтаже и техническом обслуживании современных инженерных систем. Основные наши направления - система вентиляции и кондиционирования и увлажнения, бельепровод и встроенное пылеудаление.
Благодаря своему опыту и профессионализму наши сотрудники создают комфортные и экологически чистые пространства для владельцев частного жилья, особняков и элитных апартаментов. Каждый проект разрабатывается индивидуально, исходя из особенностей здания и пожеланий клиента, обеспечивая максимальную функциональность и эстетичность применяемых решений.
«ДАСТ» известна высоким уровнем исполнительской дисциплины, четким соблюдением сроков и ответственным отношением к заказчикам. Качество и надежность выполненных работ обеспечиваются строгим контролем на всех этапах проекта, применением инновационных материалов и проверенных технологических решений.
Мы стремимся не просто соответствовать ожиданиям клиентов, но превзойти их, создавая проекты, которыми приятно пользоваться долгие годы. Именно поэтому мы гордимся доверием своих постоянных партнеров и гарантируем постоянный профессиональный рост и совершенствование наших сотрудников.
Будем рады сотрудничать с вами и совместно достигать новых высот в создании уютных и удобных жилых пространств.
Александр Мамыкин.
Генеральный директор ООО «ДАСТ».
Команда проектировщиков
Наш штат проектировщиков сформирован из опытных и компетентных специалистов, работающих рука об руку с менеджерами проектов, монтажниками и службой снабжения. Совместная деятельность команды налажена годами — более 8 лет назад началась эта успешная практика взаимодействия, результатом которой стала идеально организованная система работы.
Основные достоинства нашего подхода:
Основные достоинства нашего подхода:
- Непрерывная связь с заказчиком: мы постоянно держим контакт на всех этапах подготовки проекта, своевременно учитывая ваши пожелания и замечания.
- Качество и точность: благодаря слаженности и профессиональным знаниям проекты реализуются точно в срок и соответствуют вашим ожиданиям.
- Готовность к изменениям: в случае возникновения форс-мажорных обстоятельств мы моментально реагируем и вносим необходимые корректировки, минимизируя влияние на конечный результат.
обучение
Все проектировщики компании ежегодно проходят специализированное обучение и обязательную сертификацию по актуальным продуктам и методикам проектирования климатических систем. Регулярное изучение новинок рынка и освоение передовых методов позволяют сотрудникам держать руку на пульсе последних разработок индустрии.
Каждого специалиста отличает глубокое понимание специфики используемых материалов и техники, способность предложить оптимальное техническое решение именно для вашей задачи. Обладая самыми свежими знаниями и подтвержденной квалификацией, мы смело внедряем современные технологии ведущих брендов мира, предлагая эффективные и надежные инженерные решения.
Таким образом, выбирая нашу компанию, вы получаете гарантии высочайшей квалификации исполнителей и надежного результата, соответствующего современным международным стандартам.
Каждого специалиста отличает глубокое понимание специфики используемых материалов и техники, способность предложить оптимальное техническое решение именно для вашей задачи. Обладая самыми свежими знаниями и подтвержденной квалификацией, мы смело внедряем современные технологии ведущих брендов мира, предлагая эффективные и надежные инженерные решения.
Таким образом, выбирая нашу компанию, вы получаете гарантии высочайшей квалификации исполнителей и надежного результата, соответствующего современным международным стандартам.
Гарантия качества и сроки
Профессиональные проектировщики «ДАСТ» обеспечивают надежный и качественный результат на всех этапах работы:
- Официальная гарантия. Предоставляем гарантированное обслуживание на выполненные работы и установленное оборудование, давая Вам уверенность в долговечности и стабильной работе системы.
- Своевременность исполнения. Важнейший приоритет нашей команды — пунктуальность и эффективность выполнения проектов. Точные расчеты и грамотное управление ресурсами позволяют соблюдать обозначенные сроки без ущерба качеству.
Заказать монтажные работы
основное направление
проектирование инженерных систем
Дизайнерам и строителям!
Мы приглашаем к сотрудничеству компании по строительству и ремонту, студии дизайна и архитектурные бюро.
Мы нацелены на долгосрочное сотрудничество и гарантируем деликатное внедрение инженерных коммуникаций в ваш проект, сохраняя гармонию пространства и стиль оформления помещения.
Мы нацелены на долгосрочное сотрудничество и гарантируем деликатное внедрение инженерных коммуникаций в ваш проект, сохраняя гармонию пространства и стиль оформления помещения.
другие наши проекты
Турков
IGC
Бриззард
Комфовент
Чтобы связаться с нами или сделать заказ, оставьте заявку в форме справа или позвоните по телефону, указанному ниже.
Мы также приглашаем Вас подписаться на нашу компанию в социальных сетях, чтобы оставаться в курсе всех новинок и горячих предложений!
Телефон:
+7(499)520-97-92
Email:
info@dast.ru
офис:
МО, г. Люберцы, 3-Почтовое отделение, 65
Часы работы:
ПН-ПТ: 09:00-18:00
CRM-форма появится здесь